OSWALD / HABITAT DE L’ILL
strasbourg
Programme
Nombre de logements:
22
Type de projet:
Construction d’un immeuble en accession dit participative.
Composition:
Construction de 22 logements en accession participative, typologie des logements allant du T2 au T4.
- 5 T2 (47,09 m²)
- 9 T3 (67,78 m²)
- 8 T4 (77,36 à 79,06 m²)
- Système constructif : Béton + isolation extérieure
- Elaboration d’espaces communs tels que terrasse et pièce commune
Zac du Bohrie à OstwaldRue du Foehn67000 strasbourg
Zac du Bohrie à Ostwald
Rue du Foehn
67000 strasbourg

Contacts - Référent technique collectivité
Fiche d'identité
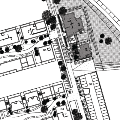
Localisation
Zac du Bohrie à Ostwald - Rue du Foehn
Type de projet
Construction d’un immeuble en accession dit participative
- Nombre de logements : 22
- Surface totale : 1469,45 m² en surface habitable + un local de 50 m²
- Surface d’espaces partagés : Local commun (pièce équipé d’un wc et d’une kitchenette) de 50 m² et terrasse commune en R+4 de 34 m²
- Equipe de maîtrise d’œuvre : Architecte DWPA ; BET Fluides : Solares Bauen ; BET Structure : SIB Etudes ; OPC + Economie : Breitfelder
Accession sécurisée participative (entre acquéreur et promoteur / bailleur) :
- Travail en commun sur les espaces partagés
- Travail personnalisé sur les espaces privatifs avec un architecte
- Elaboration du règlement intérieur de la copropriété
LOCALISATION
Zac du Bohrie à Ostwald - Rue du Foehn
TYPE DE PROJET
Construction d’un immeuble en accession dit participative.
Projet architectural
- Immeuble de 22 logements en R+5
- Réalisation structure en 2 plots
- Isolation extérieure
- Menuiserie extérieure Bois
- Terrasse commune en R+4
- Distribution verticale : Faille verticale
- Immeuble de 22 logements en R+5
- Réalisation structure en 2 plots
- Isolation extérieure
- Menuiserie extérieure Bois
- Terrasse commune en R+4
- Distribution verticale